はじめての方へ

東宝ホームのホームページへ初めてご訪問いただいたお客様にご覧いただきたいページを集めました。

分譲住宅

東宝ホーム 北九州分譲住宅遠賀エリアプライベートな屋外空間を楽しめる平屋の住まい

プライベートな屋外空間を楽しめる平屋の住まい

【遠賀郡】ブリスゲート遠賀川駅第1期 23-10号地

所在地福岡県遠賀郡遠賀町大字広渡長江他(遠賀町遠賀川駅南土地区画整理地内23街区10号地)

敷地面積233.82㎡(70.73坪)

建物面積97.71㎡(29.55坪)

販売価格48,980,000円(税込)

外観・間取り

分譲住宅概要

建売名称(号地) 【遠賀郡】ブリスゲート遠賀川駅第1期 23-10号地
所在地 福岡県遠賀郡遠賀町大字広渡長江他(遠賀町遠賀川駅南土地区画整理地内23街区10号地)
交通 JR「遠賀川」駅 徒歩3~10分(約200~750m)
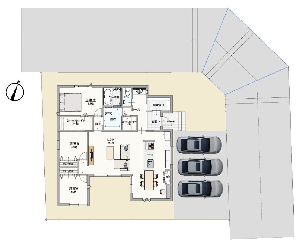
間取り 3LDK
敷地面積 233.82㎡(70.73坪)
建物面積 97.71㎡(29.55坪)
販売価格(税込) 48,980,000円(税込)
建設工事完成予定 R8年8月完成予定
入居予定 R8年12月予定
建築確認番号 第R07確認建築福住セ北00728号

『プライベートな屋外空間を楽しめる』平屋の住まい

資料請求はこちら

 

・ZEH仕様
・制震装置
・全室照明
・リビングエアコン

 

来場予約はこちら

 

◆◇オススメポイント◆◇

●急な来客から普段使いまで活躍する「シューズクローク」
●家族みんながゆったり過ごせる開放感のある「24.5帖の広々LDK」
● 帰ってきてすぐに手洗いできる「洗面所」
●駐車場3台スペースあり!お友達や家族がきても安心!
●子供たちのプライベートも重視の「独立型の子供室」
●外の開放感を感じながらプライバシーも確保できる「コの字型の半屋外空間」

 

東宝ホームに初めてご来場されるお客様へ
HPからのご予約でクオカード6,000円分プレゼント
※1家族につき1枚とさせていただきます。

来場予約はこちら

 

■□■分譲地情報□■□

【遠賀郡】ブリスゲート遠賀川駅 第1期

【遠賀郡】サニーガーデン松の本3期-KIRARAの街-

【遠賀郡】サニーガーデン伊左座

 

お問い合わせ先

東宝ホーム㈱ 宗像店

TEL:0940-72-5362

 

お問い合わせ先

TEL 0940-72-5362

来場予約はこちら

資料請求はこちら

東宝ホームの分譲住宅・施工事例はコチラ。

実際の住み心地など施主様のリアルなお声はコチラ。