はじめての方へ

東宝ホームのホームページへ初めてご訪問いただいたお客様にご覧いただきたいページを集めました。

分譲住宅

東宝ホーム 熊本分譲住宅熊本市コルーチェタウン白藤 13号地

温かみを感じる色合い。ナチュラルモダンなCOLUCE

コルーチェタウン白藤 13号地

即入居可見学可

販売価格5776万円(税込)

所在地熊本市南区白藤1丁目890番62

敷地面積200.12㎡/60.53坪

建物面積114.93㎡/34.76坪

外観・間取り

分譲住宅概要

建売名称(号地) コルーチェタウン白藤 13号地
所在地 熊本市南区白藤1丁目890番62
交通 南部総合スポーツセンター前バス停 徒歩約3分
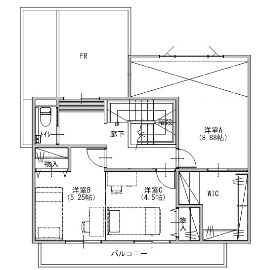
間取り 4LDK(LDK:19.5帖 和室4.5帖 洋室8.88帖・5.25帖・4.5帖)
敷地面積 200.12㎡/60.53坪
建物面積 114.93㎡/34.76坪
販売価格(税込) 5776万円(税込)
建設工事完成予定 2024年3月完成済
入居予定 即入居可
建築確認番号 第202314237号

周辺地図

「レガージュ」に続く東宝ホームプレミアムブランド「コルーチェ」のモデルハウス第1号が

ついに完成いたしました!切妻の屋根型や明るいカラーの外壁がエレガントさと可愛らしさを演出しており、

また、家具や内装もやわらかい雰囲気となっております。

是非一度ご見学ください♪

▼公式YouTubeでのルームツアー動画はこちら

この物件のお問い合わせ
(最寄りの店舗にご連絡下さい)

KAB総合住宅展示場住まいるパーク TEL 096-377-8600
東宝ホーム 白藤展示場 TEL 096-228-7204
熊日RKK住宅展 TEL 096-388-1140

来場予約はこちら

資料請求はこちら

東宝ホームの分譲住宅・施工事例はコチラ。

実際の住み心地など施主様のリアルなお声はコチラ。