はじめての方へ

東宝ホームのホームページへ初めてご訪問いただいたお客様にご覧いただきたいページを集めました。

分譲住宅

東宝ホーム 熊本分譲住宅熊本市コルーチェタウン白藤 8号地

重厚感溢れる外観。和モダンを極めたLEGAGE

コルーチェタウン白藤 8号地

即入居可見学可

販売価格6177万円(税込)

所在地熊本市南区白藤1丁目890番49

敷地面積200.60㎡/60.68坪

建物面積110.13㎡/33.30坪

外観・間取り

分譲住宅概要

建売名称(号地) コルーチェタウン白藤 8号地
所在地 熊本市南区白藤1丁目890番49
交通 南部総合スポーツセンター前バス停 徒歩約3分
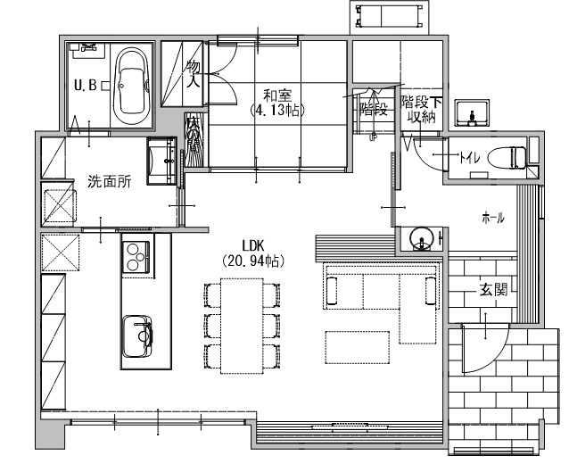
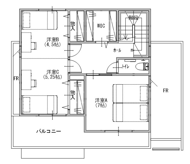
間取り 4LDK(LDK:20.94帖 和室:4.5帖 洋室:7帖・5.25帖・4.5帖)
敷地面積 200.60㎡/60.68坪
建物面積 110.13㎡/33.30坪
販売価格(税込) 6177万円(税込)
建設工事完成予定 完成済
入居予定
建築確認番号 第202314327号

周辺地図

東宝ホームプレミアムブランド「レガージュ」の新たなモデルハウスが完成いたしました!

深い軒と玄関の目隠しにルーバーを使用することでスタイリッシュな外観デザインとなっております。

また、内装には黒のクロスを使用し、家の中から見える外構の植栽の緑や木目のインテリアがより際立つ

おしゃれなデザインとなっております。

是非一度ご見学ください♪

▼公式YouTubeでのルームツアー動画はこちら

この物件のお問い合わせ
(最寄りの店舗にご連絡下さい)

KAB総合住宅展示場住まいるパーク TEL 096-377-8600
東宝ホーム 白藤展示場 TEL 096-228-7204
熊日RKK住宅展 TEL 096-388-1140

来場予約はこちら

資料請求はこちら

東宝ホームの分譲住宅・施工事例はコチラ。

実際の住み心地など施主様のリアルなお声はコチラ。